Oberhausener Straße/Augustastraße (Q 24)

Die frühzeitige Öffentlichkeitsbeteiligung zum Bebauungsplan "Oberhausener Straße/Augustastraße - Q 24" wurde vom 16. Februar 2021 bis 16. März 2021 einschließlich durchgeführt.

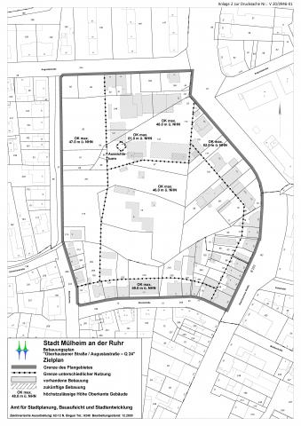
Ziele der Planung: 
  • Zulässigkeit von Bauvorhaben zukünftig nach Festsetzungen des einfachen Bebauungsplanes und im Übrigen nach den Vorgaben der §§ 34 und 35 Baugesetzbuch (BauGB)
  • Planerische Steuerung der Höhenentwicklung der Gebäude innerhalb des Plangebietes durch Festsetzung von maximalen Gebäudehöhen
  • Verhinderung von optischen Überdimensionierungen von Neubebauungen gegenüber der Bestandsbebauung durch Staffelung der Gebäudehöhen
Straßen: 
Alsenstraße
Augustastraße
Oberhausener Straße
Rosenkamp
Pläne: 
Geografische Verortung: 

Hinweise

Die hier freigestellten Texte und Pläne dienen zur allgemeinen Information, ein Rechtsanspruch kann daraus nicht abgeleitet werden. Die Originale sind im Stadtplanungsamt während der Öffnungszeiten einsehbar.

Für nähere Informationen zum aktuellen Stand der Planung wenden Sie sich bitte an die zuständigen Ansprechpartner im Amt für Stadtplanung und Wirtschaftsförderung.

Click a feature on the map to see the details