Diepenbeck/Velauer Straße (G 12)

Die frühzeitige Öffentlichkeitsbeteiligung zum Bebauungsplan "Diepenbeck/Velauer Straße - G 12" wurde vom 21. August 2017 bis 18. September 2017 einschließlich durchgeführt.

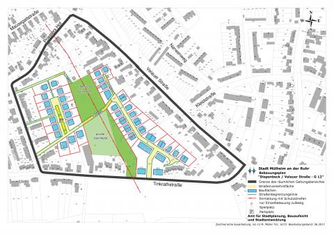
Ziele der Planung: 
  • Planungsrechtliche Sicherung der vorhandenen Bebauungsstruktur durch Festsetzung von Wohnbauflächen
  • Schaffung von Planungsrecht für 16 Wohneinheiten in Form von II-geschossigen Einzelhäusern (Baufeld 1)
  • Schaffung von Planungsrecht für circa 18 Wohneinheiten in Form von II-geschossigem Geschosswohnungsbau und circa 30 Wohneinheiten in Form von II-geschossigen Einzel- und Doppelhäusern (Baufeld 2)
  • Sicherung und Entwicklung von Freiflächen im zentralen Plangebiet durch Festsetzung von privaten und öffentlichen Grünflächen
  • Sicherung der vorhandenen Leitungen einschließlich erforderlicher Schutzstreifen
Straßen: 
Diepenbeck
Priesters Hof
Tinkrathstraße
Velauer Straße
Pläne: 
Geografische Verortung: 

Hinweise

Die hier freigestellten Texte und Pläne dienen zur allgemeinen Information, ein Rechtsanspruch kann daraus nicht abgeleitet werden. Die Originale sind im Stadtplanungsamt während der Öffnungszeiten einsehbar.

Für nähere Informationen zum aktuellen Stand der Planung wenden Sie sich bitte an die zuständigen Ansprechpartner im Amt für Stadtplanung und Wirtschaftsförderung.

Click a feature on the map to see the details